聯係我(wǒ)們(men)
服(fú)務中(zhōng)心
工程案例(lì)
風機技術
新聞中心
新聞資訊
行業新聞
產品中心
離心風機係列
混軸(zhóu)流、斜流係列
屋頂風機係列
其他風機
配套附件
走進17.c18-起草免费
公司簡介
企業文化
設備展示
網站首頁
1
2
3
您(nín)的當前位置是:
網站首頁
> 產品中心 >
其(qí)他風機
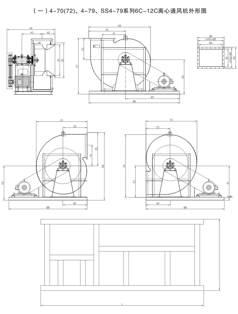
> 4-72、79、68一般用途離心風機(jī)
4-72、79、68一般用途離心風機
產品列表
PRODUCTS LIST
+ 離心風機係列
- HTFC係列(liè)櫃式離心(xīn)風(fēng)機
- HTFC-V係列櫃式離心(xīn)風機
- DBF係列高效低噪櫃式離心風機
- GDF離心式管道風機
- DPT靜音管道(dào)風機
- YDF係列噴流誘導風機(jī)
+ 混(hún)軸流(liú)、斜流係列
- HTF係列消防高溫排煙風機
- SZF係列高效(xiào)節能混(軸)流風機
- SWF、HL3-2A係列高效節能混(軸(zhóu))流風機
- PYHL-14A(HTF-B)軸流式消防排煙風機
- GXF係列(liè)斜流風機
- SJG係列斜流風機
- DTF係列可變翼軸流風機
- HTF-D係列軸流式消防排煙風機
- DZ係列軸流風機
- CDZ係列超低噪聲軸流風機(jī)
- T35(40)-11係列新型(xíng)軸流風機
- XBDZ(DWEX)係列方形壁式軸流風機
+ 屋頂風機係列
- DWT-I係列屋頂式消防(通風)兩用軸流風機
- DWT係列離心(xīn)式屋頂風(fēng)機
- RAF(RTC)係列全鋁製屋頂(dǐng)風機(jī)
+ 其他風機
- 4-72、79、68一般用途離心風機
- 9-19、26中高壓離心風機
- 換氣扇(排氣扇)係列
- SDS隧道式射流風機
+ 配套附件
- 風閥、消聲、風口係列
+ 風機使用(yòng)、維護、保養說(shuō)明
- 風機使(shǐ)用(yòng)、維護、保養說明
Copyright © 浙江17.c18-起草免费風機有限公司(sī) 版權所有
浙ICP備16040971號-1
浙(zhè)公網安備 33060402000268號
17.c18-起草免费-WWW.17C久久久嫩草-一起草 www.17c.com-17.c-起草国产精品入口